UAUIM – 4th Year, 1st Semester – Spatial-Functional Mixing – Hotel – Individual Project


Visualisation of the project.






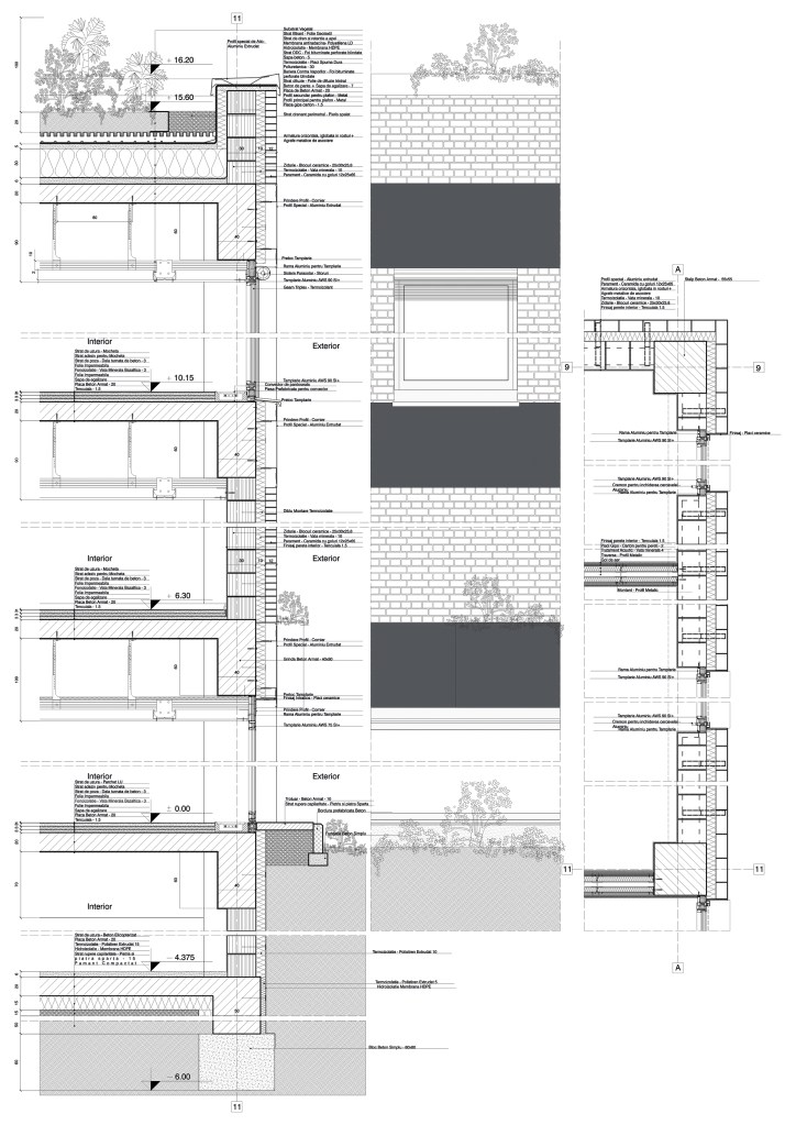
Plans, sections, and elevations of the projects.





Spatial Design, Interior Architecture, Retail Environments
UAUIM – 4th Year, 1st Semester – Spatial-Functional Mixing – Hotel – Individual Project


Visualisation of the project.






Plans, sections, and elevations of the projects.




